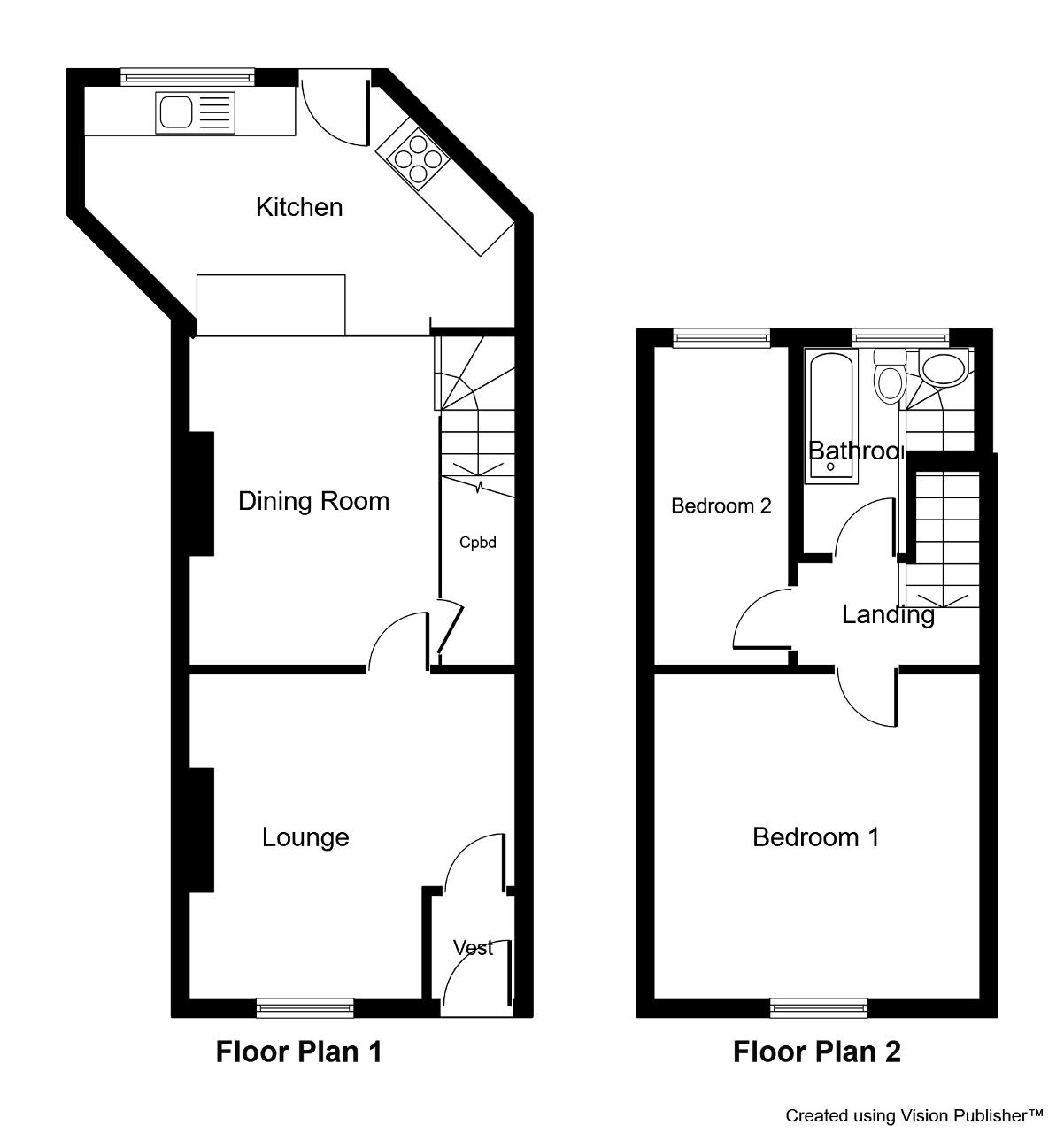
A clean & spacious mid terrace property which has been maintained to a good standard and is complete with U.p.v.c double glazing & gas central heating. Internally the property offers entrance vestibule, lounge with feature fireplace, dining room with staircase to first floor, the kitchen although triangular shaped is very spacious and comprises of white units to two walls with breakfast bar that separates it from the dining area. The first floor provides a large master bedroom and a really good sized second, a newly fitted bathroom has just been installed with mains shower & screen over the bath. The décor is all fresh and grey carpets complement. Rear enclosed yard and gated alley system. No pets or smokers permitted.
The positioning of this home is ideal for the town centre & professionals who commute due to the fantastic bus, Tran & Metrolink stations. Tameside collages and hospital are also within reach.
For further information on this property please call 0161 303 0056 or e-mail [email protected]









